Projekte
Neubau WüB, Schöftland

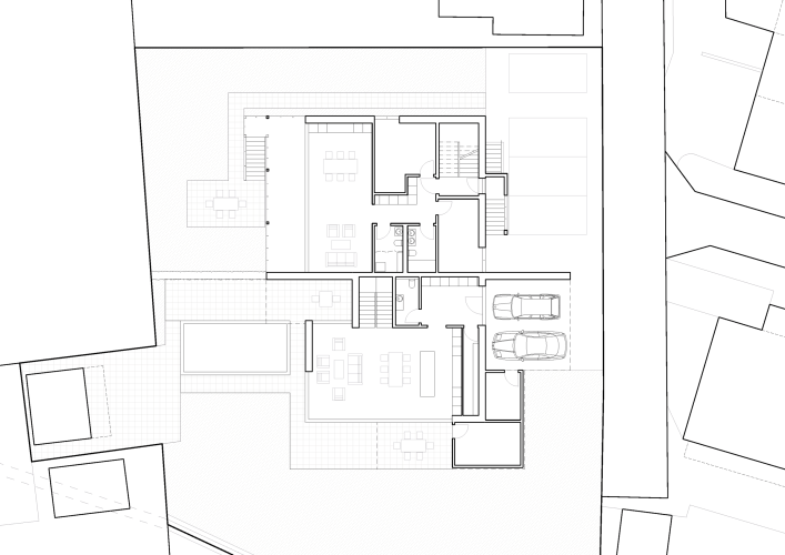
Im Herzen von Schöftland entsteht ein architektonisch anspruchsvoller Ersatzneubau, bestehend aus einem Mehrfamilienhaus, das auf dem bestehenden Untergeschoss aufbaut, sowie einem südlich gelegenen, additiv angeordneten Einfamilienhaus. Die beiden Gebäude werden durch separate Gartenbereiche voneinander abgegrenzt und über einen bewusst platzierten Geschossversatz voneinander entkoppelt.
Das Mehrfamilienhaus umfasst drei hochwertige Wohneinheiten, die über ein gemeinsames Treppenhaus erschlossen werden. Die weitläufigen Balkone sind nach Westen ausgerichtet und bieten den Bewohnern einen ungestörten Blick in die Umgebung.
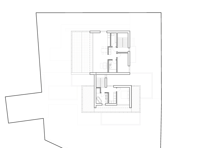
Das Einfamilienhaus überzeugt im Erdgeschoss mit einem grosszügigen Eingangsbereich, von dem aus die Wohnräume zugänglich sind. Diese bieten direkten Zugang zum Garten sowie zum Poolbereich und schaffen so eine harmonische Verbindung zwischen Innen und Aussen. Durch verschiedene überdachte Bereiche wird der Aussenraum zusätzlich aufgewertet. Im Obergeschoss befinden sich drei Zimmer, die sich ein gemeinsames Bad teilen. Ein grosszügiges Schlafzimmer, eine separate Ankleide, ein eigenes Bad und eine Dachterrasse bieten den Bewohnern im Attika einen exklusiven Rückzugsort.















