Zum Hauptinhalt springen

Projekte

Neubau WüB, Oberlunkhofen

Auftraggeber: Privat
Auftragsart: Studie
Bilder: Hirschi Schmid Architekten AG

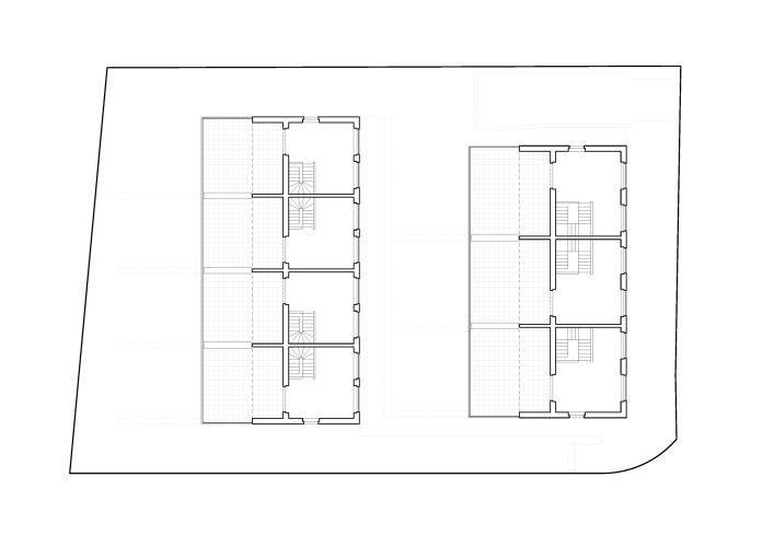
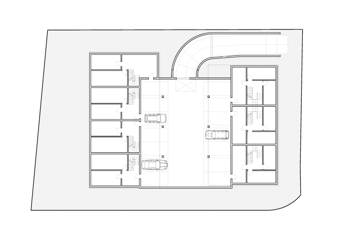
Auf einer ruhig gelegenen Parzelle am Rand der Landwirtschaftszone entsteht ein neues Wohnensemble. Die Überbauung umfasst zwei Baukörper mit insgesamt sieben Reihenhäusern, die in zwei unterschiedlichen Grössen angeboten werden. Die klare, kompakte Anordnung der Gebäude ermöglicht grosszügige, nach Südwesten ausgerichtete Aussenräume für alle Einheiten. Diese private Freiraumqualität wird durch die gemeinschaftlich genutzte Tiefgarage ergänzt, in der sich auch die privaten Kellerräume befinden.

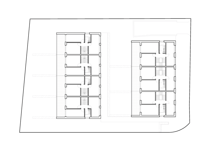
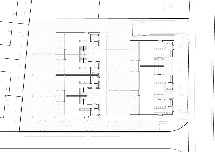
Im Erdgeschoss befinden sich ein gedeckter Eingangsbereich sowie die offenen Wohnräume mit direktem Zugang zu den privaten Gärten. Im Obergeschoss bieten drei Zimmer mit gemeinsamem Badezimmer sowie ein Balkon funktionalen Wohnkomfort für Familien. Das Attika beherbergt ein separates Zimmer mit Zugang zu einer grossen, privaten Terrasse – ein zusätzlicher Rückzugsort mit Weitblick.