Projekte
Neubau WüB Hölzli, Rothrist
Auftraggeber: Privat
Auftragsart: Studie
Bilder: Hirschi Schmid Architekten AG

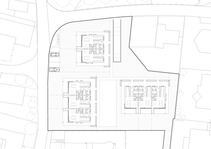
Das von Einfamilien- und Reihenhäusern geprägte Quartier, liegt an ruhiger Lage direkt neben der Landwirtschaftszone. Hier soll eine neue Überbauung mit drei Reihenhäuser und insgesamt 8 Wohneinheiten entstehen. Die Teilhäuser verfügen über ein eigenes Kellergeschoss mit Anbindung an die gemeinsame Einstellhalle, sowie drei Wohngeschosse inkl. Dachgeschoss. Die einzelnen Parteien besitzen einen eigenen Garten und können hier in ihrem Stück Grün das Familienleben und das Leben im Quartier geniessen. Passend zum Name des Wohnquartiers ist die Materialwahl der Gebäude eine Holzverkleidung in dezentem Grau, welche durch moderne Elemente das klassische Steildachhaus in die heutige Zeit transponiert.










