Zum Hauptinhalt springen

Projekte

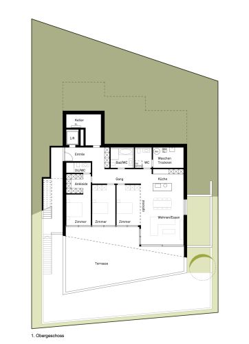
Neubau Terrassenhaus Nellweg H1, Erlinsbach

Auftraggeber: Privat
Auftragsart: Studie
Bilder: Hirschi Schmid Architekten AG
Terrassenhaus 1 Nellweg Erlinsbach Visualisierung

An bester Lage, mit traumhaftem Ausblick auf die Aarelandschaft und die Stadt Aarau, thront das Terrassenhaus mit drei Wohneinheiten. Der Baukörper ist sorgfältig in die steile Topografie eingepasst und belässt das natürlich gewachsene Terrain unverändert. Die Wohneinheiten werden durch einen Innenlift direkt vom Garagengeschoss her erschlossen. Sämtliche Wohnräume werden wechselseitig angeordnet, nach Süden ausgerichtet und geschützt mittels Vordächer. Durch raumhohe Fensterfronten werden sie optimal belichtet. Der grossflächige, partiell überdachte Terrassenbereich bietet jeder Wohneinheit ihren ganz privaten Bereich mit viel Ambiente. Rückwärtig sind die Nass- und Nebenräume anberaumt, diese werden durch eine breite und gut ausgeleuchtete Korridor-Zone erschlossen.

Terrassenhaus 1 Nellweg Erlinsbach Visualisierung