Projekte
Neubau MFH, Bottenwil

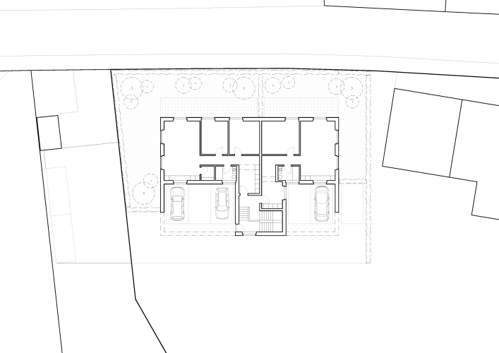
Am Dorfrand von Bottenwil, direkt angrenzend an die Landwirtschaftszone, entsteht ein hochwertiger Neubau mit fünf Wohnungen. Die Parzelle liegt in der Dorfzone, neben einem schützenswerten Bestandsgebäude. Das Gebäude ist zur Hälfte unterkellert und vereint funktionale Qualität mit einer zeitgemässen, ortsverbundenen Architektursprache.
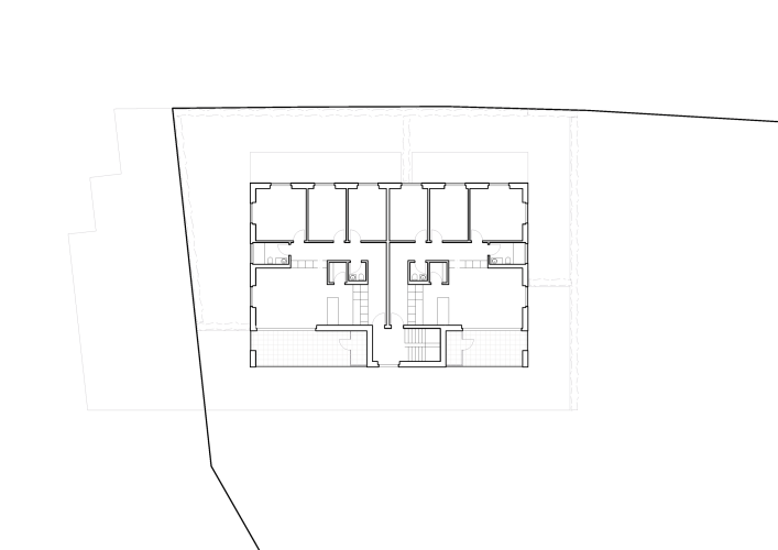
Die klar strukturierte Volumetrie mit traditionellem Steildach integriert sich harmonisch ins gewachsene Ortsbild. Der massive Sichtbetonsockel bildet das Fundament des Gebäudes, darüber gliedert sich das Ober- und Dachgeschoss in feiner vertikaler Holzschalung. Das zentrale Treppenhaus wird als eigenständiges Volumen lesbar und schafft eine klare Adresse.
Die Erschliessung erfolgt durch das zentrale Treppenhaus, mit gedeckter und überhohoer Parkierung im Erdgeschoss auf der rückwärtigen Seite. Die Erdgeschosswohnungen verfügen über direkte Gartenzugänge zur grünen Dorfstrasse hin, während die Wohnungen im Obergeschoss mit Balkonen den südöstlichen Grünraum aufspannen. Die Dachwohnung bietet mit einer grosszügigen Loggia nach Süden ein besonderes Wohnerlebnis. Durch die differenziert angeordneten Aussenräume hat jede Wohnung ihre individuelle Privatsphäre.













